Call Today

01737 225 711 (Surrey Office)
020 3828 1180 (London Office)
01689 857 253 (Kent Office)

Silver Trees, Warren Drive in Kingswood, Surrey

OUR INVOLVEMENT

Planning

Preferred Partner Involvement

David Archer Associates (Arboriculture)

Project Outline

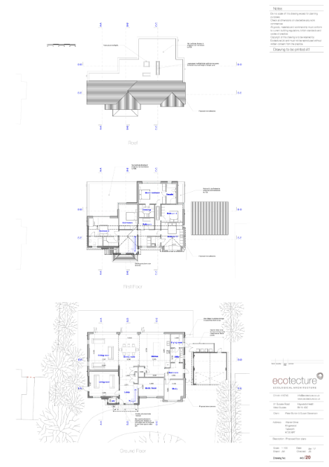
The WS Planning team was consulted on this project to gain permission for a two-storey side and rear extension in The Warren and The Glade Residential Area of Special Character (RASC) in the Surrey village of Kingswood.

The extension would keep a traditional appearance in-keeping with the RASC at the front of the property, with a contemporary, flat-rooved two storey extension with timber cladding at the rear.

Due to the ambition of the contemporary design, the Planning team took this case to pre-application with Reigate and Banstead Borough Council, where the principle of the proposal was not objected to, with a suggestion of obscure glazed side windows to protect the neighbour amenity.

The WS Planning team was consulted on this project to gain permission for a two-storey side and rear extension in The Warren and The Glade Residential Area of Special Character (RASC) in the Surrey village of Kingswood.

The extension would keep a traditional appearance in-keeping with the RASC at the front of the property, with a contemporary, flat-rooved two storey extension with timber cladding at the rear.

Due to the ambition of the contemporary design, the Planning team took this case to pre-application with Reigate and Banstead Borough Council, where the principle of the proposal was not objected to, with a suggestion of obscure glazed side windows to protect the neighbour amenity.

Reference:
J002594

OUTCOME

Conditional approval at Local Level