Call Today

01737 225 711 (Surrey Office)
020 3828 1180 (London Office)
01689 857 253 (Kent Office)

Okehampton Road in London NW10

OUR INVOLVEMENT

Planning

Project Outline

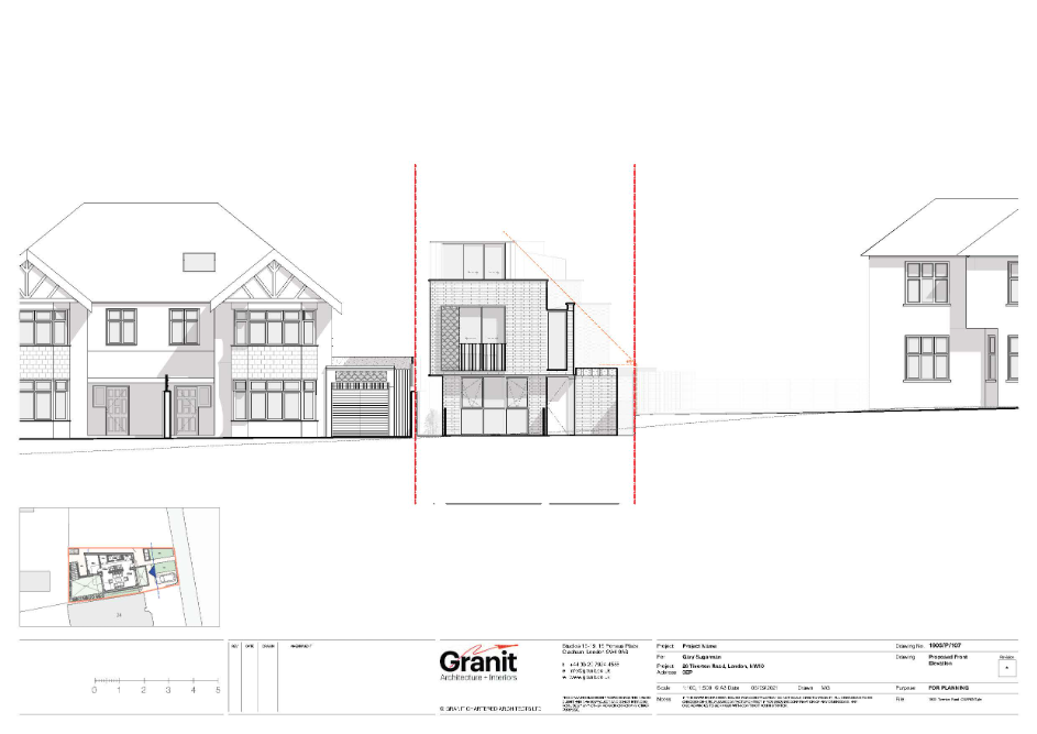
For this project WS Planning & Architecture team acted as the Planning Agent for a contemporary architectural design, making effective use of a brownfield site.

The proposal was for the demolition of an existing garage to make way for the construction of a three storey detached house with basement, sunken amenity space to front and rear, erection of front boundary wall, provision of waste storage, car and cycle parking and associated landscaping.

This project follows a previous proposal for a two-storey construction that was approved. However, a subsequent application for the erection of a three-storey dwelling was refused and dismissed at appeal. The site had a complex history that had to be carefully considered to ensure the previous reasons for refusal were addressed in the latest application.

WS Planning & Architecture worked collaboratively with Granit Architecture + Interiors on this project to pull together the application with accompanying drawings and a detailed cover letter.

 

For this project WS Planning & Architecture team acted as the Planning Agent for a contemporary architectural design, making effective use of a brownfield site.

The proposal was for the demolition of an existing garage to make way for the construction of a three storey detached house with basement, sunken amenity space to front and rear, erection of front boundary wall, provision of waste storage, car and cycle parking and associated landscaping.

This project follows a previous proposal for a two-storey construction that was approved. However, a subsequent application for the erection of a three-storey dwelling was refused and dismissed at appeal. The site had a complex history that had to be carefully considered to ensure the previous reasons for refusal were addressed in the latest application.

WS Planning & Architecture worked collaboratively with Granit Architecture + Interiors on this project to pull together the application with accompanying drawings and a detailed cover letter.

 

Reference:
J003937

OUTCOME

Conditional approval at Local Level

COMMENTS

The site had a complex history, therefore achieving planning permission for the desired amendments to the previously approved plans was difficult as the project was constrained by the refused application.

We are delighted that the WS Planning & Architecture team were able to Unlock Potential for the client and achieve their desired outcome.

Plans and drawings courtesy of Granit Architecture & Interiors

The site had a complex history, therefore achieving planning permission for the desired amendments to the previously approved plans was difficult as the project was constrained by the refused application.

We are delighted that the WS Planning & Architecture team were able to Unlock Potential for the client and achieve their desired outcome.

Plans and drawings courtesy of Granit Architecture & Interiors