Call Today

01737 225 711 (Surrey Office)
020 3828 1180 (London Office)
01689 857 253 (Kent Office)

Highlands in Banstead, Surrey

OUR INVOLVEMENT

Planning

Project Outline

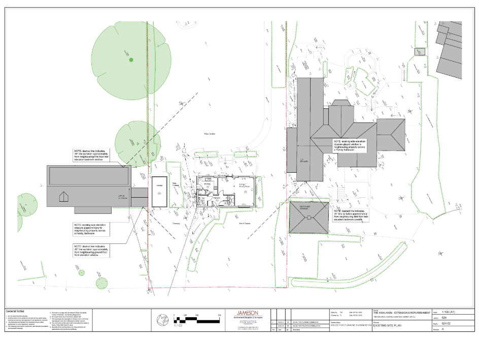
This proposal concerned the demolition of an existing 3 bed dwelling, and the erection of a new 5 bedroom detached dwelling in a cul-de-sac location in Banstead. WS Planning & Architecture acting as the Planning Agent for the full application of this proposal, liaising with the client and external advisors to pull together the application as well as submitting a detailed cover letter to support the application. The proposed dwelling has a larger footprint than the existing dwelling and encompasses a modern design and contemporary living space. WS Planning & Architecture were pleased to gain conditional approval for this replacement dwelling, that is substantially larger than the original dwelling.

This proposal concerned the demolition of an existing 3 bed dwelling, and the erection of a new 5 bedroom detached dwelling in a cul-de-sac location in Banstead. WS Planning & Architecture acting as the Planning Agent for the full application of this proposal, liaising with the client and external advisors to pull together the application as well as submitting a detailed cover letter to support the application. The proposed dwelling has a larger footprint than the existing dwelling and encompasses a modern design and contemporary living space. WS Planning & Architecture were pleased to gain conditional approval for this replacement dwelling, that is substantially larger than the original dwelling.

Reference:
J003359

OUTCOME

Conditional approval at Local Level

COMMENTS

Replacement dwellings require careful consideration to ensure they are respectful of the local character and do not negatively impact the amenity of neighbouring properties. This application illustrates WS Planning & Architecture is able to unlock potential of sites to allow for well-designed replacement dwellings.

Drawings courtesy of Jameson Architectural Designers & Surveyors

Replacement dwellings require careful consideration to ensure they are respectful of the local character and do not negatively impact the amenity of neighbouring properties. This application illustrates WS Planning & Architecture is able to unlock potential of sites to allow for well-designed replacement dwellings.

Drawings courtesy of Jameson Architectural Designers & Surveyors