Call Today

01737 225 711 (Surrey Office)
020 3828 1180 (London Office)
01689 857 253 (Kent Office)

Chipstead Road in Banstead, Surrey

OUR INVOLVEMENT

Planning & Architecture

Project Outline

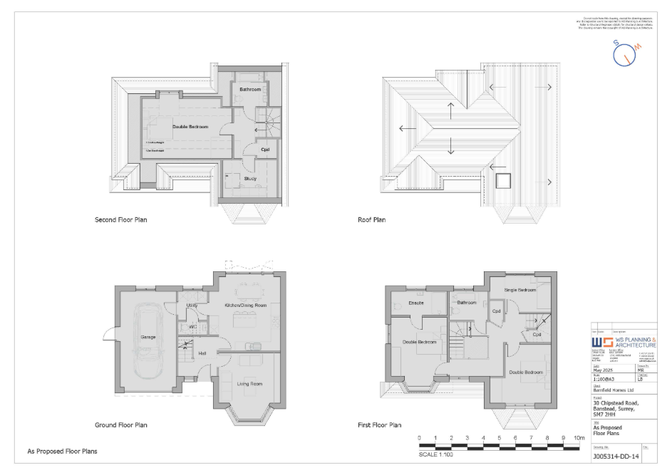
This project involved the demolition of an existing garage to make way for the erection of two 2-bedroom semi-detached houses. There was also side garden land available for the construction.

Planning was refused in October 2024 due to lack of amenity and overdevelopment. This was dismissed at appeal in May 2025, although they didn’t agree with the council on the amenity point, it was dismissed due to overdevelopment on this corner plot.

A follow-up resubmission was submitted for a single larger house with associated parking using the same footprint as the original plans.

This project involved the demolition of an existing garage to make way for the erection of two 2-bedroom semi-detached houses. There was also side garden land available for the construction.

Planning was refused in October 2024 due to lack of amenity and overdevelopment. This was dismissed at appeal in May 2025, although they didn’t agree with the council on the amenity point, it was dismissed due to overdevelopment on this corner plot.

A follow-up resubmission was submitted for a single larger house with associated parking using the same footprint as the original plans.

Reference:
J005314

OUTCOME

Permission was granted by Reigate & Banstead Council in October 2025.