Call Today

01737 225 711 (Surrey Office)
020 3828 1180 (London Office)
01689 857 253 (Kent Office)

Cavendish Road in Redhill, Surrey

OUR INVOLVEMENT

Planning & Architecture

Preferred Partner Involvement

Connick Tree Care (Arboriculture)

Project Outline

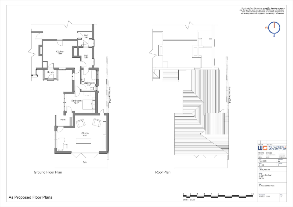
Our client wanted to convert their existing garage into a habitable space to expand their living space. The project also included plans to build a side and rear extension to the main property that would entail design alterations to the roof.

The project necessitated conducting an Arboricultural Impact Assessment due to mature trees on the site which may be impacted upon the proposed development. This also included the quality assessment of all the trees. This was carried out by Connick Tree Care who are one of our Preferred Partners.

The site lies withing Redstone Hill Conservation Area. No tree preservation orders were found either at or adjacent to the property.

Our client wanted to convert their existing garage into a habitable space to expand their living space. The project also included plans to build a side and rear extension to the main property that would entail design alterations to the roof.

The project necessitated conducting an Arboricultural Impact Assessment due to mature trees on the site which may be impacted upon the proposed development. This also included the quality assessment of all the trees. This was carried out by Connick Tree Care who are one of our Preferred Partners.

The site lies withing Redstone Hill Conservation Area. No tree preservation orders were found either at or adjacent to the property.

Reference:
J005215

OUTCOME

Conditional approval at Local Level