Call Today

01737 225 711 (Surrey Office)
020 3828 1180 (London Office)
01689 857 253 (Kent Office)

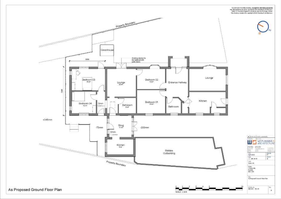
Batts Hill in Redhill, Surrey

OUR INVOLVEMENT

Planning & Architecture

Project Outline

The client wanted to maximise their space by building a side extension to their existing dwelling.

The client’s brief was to design and obtain planning approval for a reception area leading to two good sized double bedrooms at the side of house.

This was achieved by a certificate of lawfulness. A Certificate of Lawfulness is an official document from a Local Planning Authority (LPA) that confirms a use or development is lawful, meaning it is immune from planning enforcement action. It can be for existing or proposed developments and is often used for projects that are already complete and have been in place for more than four years, or for proposed works that fall within permitted development rights. Applying for this certificate is optional but can provide valuable protection and reassurance when selling a property.

The client wanted to maximise their space by building a side extension to their existing dwelling.

The client’s brief was to design and obtain planning approval for a reception area leading to two good sized double bedrooms at the side of house.

This was achieved by a certificate of lawfulness. A Certificate of Lawfulness is an official document from a Local Planning Authority (LPA) that confirms a use or development is lawful, meaning it is immune from planning enforcement action. It can be for existing or proposed developments and is often used for projects that are already complete and have been in place for more than four years, or for proposed works that fall within permitted development rights. Applying for this certificate is optional but can provide valuable protection and reassurance when selling a property.

Reference:
J005377

OUTCOME

The Certificate of Lawfulness was granted July 2025.

COMMENTS

The WSPA team successfully unlocked the potential of this site.

The WSPA team successfully unlocked the potential of this site.