Call Today

01737 225 711 (Surrey Office)
020 3828 1180 (London Office)
01689 857 253 (Kent Office)

Bracken House, Waterhouse Lane in Kingswood, Surrey

OUR INVOLVEMENT

Planning

Preferred Partner Involvement

David Archer Associates (Arboriculture)
WS Heritage (Heritage)

Project Outline

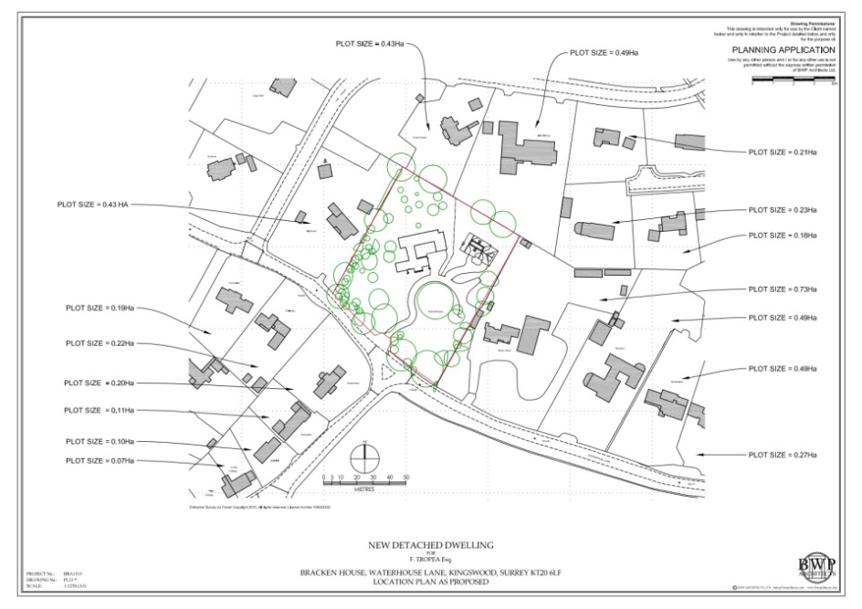
The WS Planning & Architecture team was consulted to gain planning permission for the erection of a new dwelling on the large plot of an existing home in the desirable The Warren and The Glade Residential Area of Special Character (RASC) in the village of Kingswood, Surrey.

Being within a RASC can make it much harder for planning permission to be granted, as due care and attention must be paid to the design o the proposal, such that it remains in-keeping with the character of the area.

The site is also on the edge of the Kingswood Conservation Area. Again, this policy restrictive designation means attention to detail within the proposal is imperative for character to be consistent in the Conservation Area.

Plans and drawings courtesy of BWP Architects

The WS Planning & Architecture team was consulted to gain planning permission for the erection of a new dwelling on the large plot of an existing home in the desirable The Warren and The Glade Residential Area of Special Character (RASC) in the village of Kingswood, Surrey.

Being within a RASC can make it much harder for planning permission to be granted, as due care and attention must be paid to the design o the proposal, such that it remains in-keeping with the character of the area.

The site is also on the edge of the Kingswood Conservation Area. Again, this policy restrictive designation means attention to detail within the proposal is imperative for character to be consistent in the Conservation Area.

Plans and drawings courtesy of BWP Architects

Reference:
J002641

OUTCOME

Conditional approval at Local Level