Call Today

01737 225 711 (Surrey Office)
020 3828 1180 (London Office)
01689 857 253 (Kent Office)

Myrtle Road in Dorking, Surrey

OUR INVOLVEMENT

Planning & Architecture

Project Outline

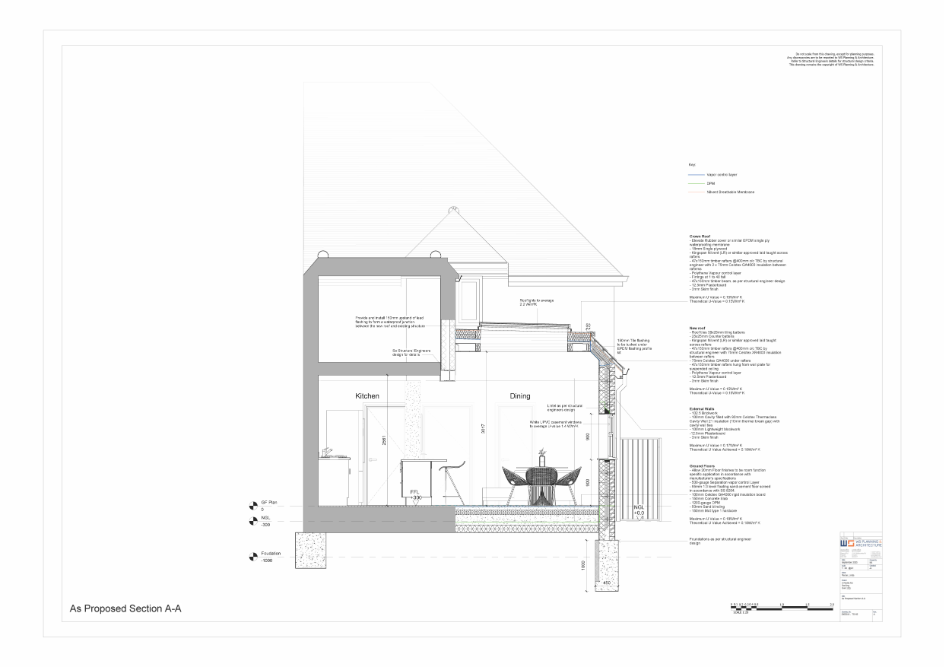
Our team worked closely with the client who wanted to find a solution to maximise their existing living space.

The plan entailed the erection of a single storey rear extension to create an open plan kitchen, a comfortable living room and an open plan dining area.

A separate utility room would also be achieved by getting rid of a redundant chimney stack.

A generous rooflight configuration on the overhead flat roof allowed for plenty of natural daylight to flood the whole extension area as well as a side window and bifold door leading to a terrace and garden.

Our team worked closely with the client who wanted to find a solution to maximise their existing living space.

The plan entailed the erection of a single storey rear extension to create an open plan kitchen, a comfortable living room and an open plan dining area.

A separate utility room would also be achieved by getting rid of a redundant chimney stack.

A generous rooflight configuration on the overhead flat roof allowed for plenty of natural daylight to flood the whole extension area as well as a side window and bifold door leading to a terrace and garden.

Reference:
J005210

OUTCOME

Planning Application was granted in July 2025

COMMENTS

This is a perfect example on what can be achieved with clever planning and architectural joined up thinking to deliver the client’s ambitions for extending their living space.

This is a perfect example on what can be achieved with clever planning and architectural joined up thinking to deliver the client’s ambitions for extending their living space.