Call Today

01737 225 711 (Surrey Office)
020 3828 1180 (London Office)
01689 857 253 (Kent Office)

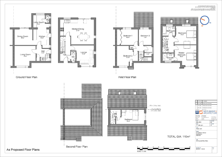
Gresham Avenue in Warlingham, Surrey

OUR INVOLVEMENT

Planning & Architecture

Project Outline

Our client wanted to unlock the potential of their land and build a detached property on a plot adjacent to their family home.

The new dwelling comprises of a dining and living room, kitchen and utility area on the ground floor. A staircase leading to the first floor offering three good sized bedrooms and bathroom.

The development also required planning for vehicle access that included a dropped kerb and associated parking.

Our client wanted to unlock the potential of their land and build a detached property on a plot adjacent to their family home.

The new dwelling comprises of a dining and living room, kitchen and utility area on the ground floor. A staircase leading to the first floor offering three good sized bedrooms and bathroom.

The development also required planning for vehicle access that included a dropped kerb and associated parking.

Reference:
J004925

OUTCOME

Planning Application Granted in January 2025

COMMENTS

This was a great example of how landowners can maximise the potential of their land and how our WS Planning & Architecture team can help them achieve their ambitions.

This was a great example of how landowners can maximise the potential of their land and how our WS Planning & Architecture team can help them achieve their ambitions.